Ny

Exklusiv hörn tak-bungalow med 3 sovrum i Los Balcones

315.000€
Ref: LOTUS 901
Download PDF brochure
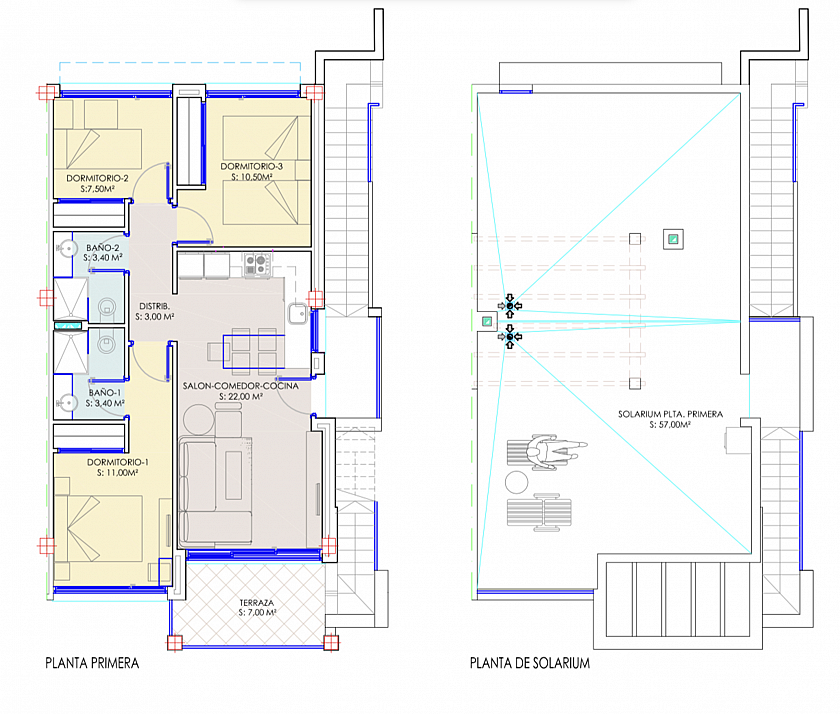
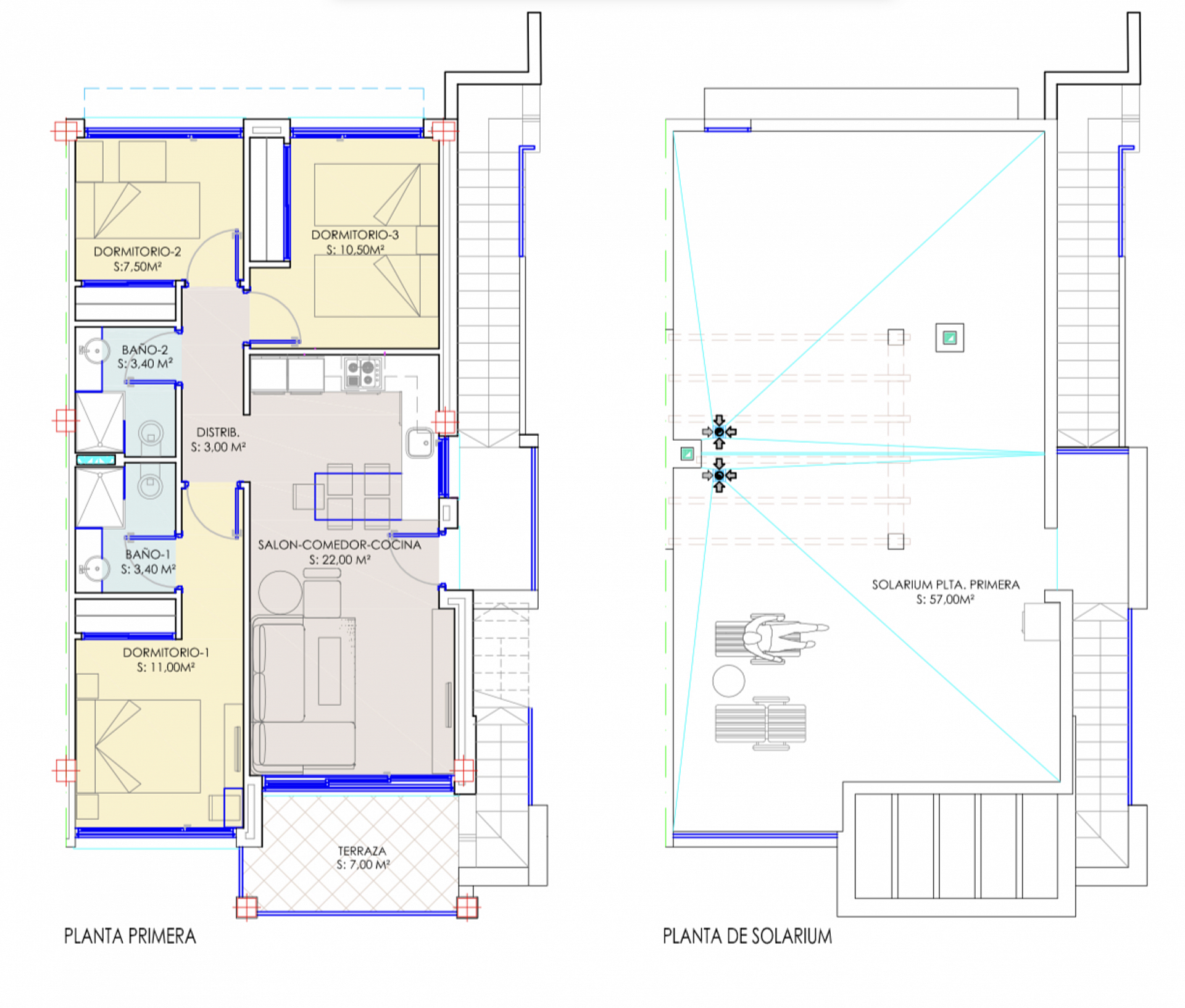
  • Sovrum 3 Sovrum
  • Badrum 2 Badrum
  • Fastighet 69m2 Fastighet
  • Pool Gemensam
  • Parkering Ja

Lotus Properties presenterar stolt ytterligare ett exklusivt tak-hörn bungalow med 3 sovrum och 2 badrum, belägen på en sluttning med fantastisk utsikt över den rosa saltsjön. Här finns en privat takterrass med panoramavy samt en balkong med utsikt över poolområdet.

Bostadsområdet erbjuder vackra grönområden och två stora pooler, perfekt för avkoppling och socialt umgänge. Designen är modern och elegant, byggd med noggrant utvalda material av högsta kvalitet. Dessutom ingår parkering och förråd i det underjordiska garaget.

Bostaden säljs fullt möblerad, i enlighet med bilderna.
Varmt välkomna att kontakta oss på Lotus Fastigheter för mer information om detta fantastiska hem.

 

https://www.instagram.com/reel/DRJzr0zjDvm/?utm_source=ig_web_copy_link&igsh=NTc4MTIwNjQ2YQ==

Ali Shafei
Ali Shafei

VD - Ansvarig Mäklare

Details

Generell information
  • PoolGemensam
  • TrädgårdGemensam
  • Orientering Sydost
  • UtsiktSJÖ
  • ParkeringJa
  • Energiklass certifikatBeställd
  • Byggår2023
Områden
  • Bostadsyta69 m 2
  • Storlek takterrass57 m 2
Avstånd
  • Avstånd till flygplatsen48 Km
  • Avstånd till stranden3 Km
  • Avstånd till staden3,5 Km
  • Avstånd till golf7 Km
  • Avstånd till butiker850 M
Egenskaper
  • Möblerad
  • Golvvärme
  • Grill plats
  • Luftkonditionering
  • Gemensam Pool
  • Garage
  • Förvarings rum
  • Vitvaror

Plats

Fråga om visning
*
*
*
*
Begär mer info
*
*
*
Estoy de acuerdo

Utilizamos cookies propias y de terceros para realizar análisis de uso y de medición de nuestra web para mejorar nuestros servicios. Si continua navegando, consideramos que acepta su uso. Para obtener más información aquí.

Låt oss veta vad du letar efter!